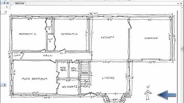
How to draw your rooms in Level One Certification for Xactimate (Xactimate)

Tonton & Download Video Musik Gratis

⬇ DOWNLOAD NOW
Kalau muncul iklan pop-up, tutup lalu klik tombol kembali

Download lagu How to draw your rooms in Level One Certification for Xactimate (Xactimate) secara gratis hanya untuk keperluan promosi. Dukung artis favorit kamu dengan membeli musik original di iTunes atau platform resmi lainnya.